Толщина полотна: 80, 100, 120 мм
Ширина светового проема: 1000-4500 мм
Высота светового проема: 1000-4800 мм
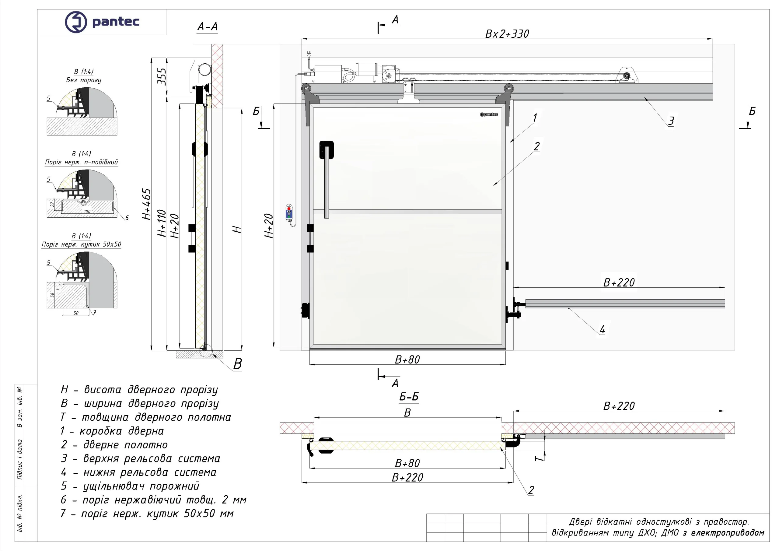
Полотно
Дверное полотно с закладными элементами, к которым крепится фурнитура, изготавливается как цельнолитое, что исключает клеевые соединения. Полотно обрамлено анодированным алюминиевым профилем, который обеспечивает прочность и долговечность эксплуатации. Многокомпонентная резина уплотнителя обладает отличными герметизирующими свойствами и мягкостью при низких температурах. Пластиковая термовставка исключает мостик холода.
Теплоизоляция
Жесткий вспененный полиуретан PUR (Германия) плотностью 40-42 кг/м³, который является одним из лучших утеплителей по показателям теплопроводности, влагопоглощения (98% закрытых пор), долговечности, биологической и химической стойкости и др.
Облицовка
- Стальной Оцинкованный стальной, загрунтованный лист толщиной 0,5-0,68 мм с покрытием Polyester. Цвет RAL 9003 (холодный белый), 9010 (теплый белый) или другой на заказ.
- Оцинкованный стальной, загрунтованный лист толщиной 0,62 мм с покрытием Food Safe (жесткий ПВХ 120 мкм). Цвет RAL 9003 (холодный белый), 9010 (теплый белый).
- Нержавеющая сталь пищевой марки AISI 304, толщина 0,5-0,8 мм. Поверхность предлагается полуматовая, шлифованная или зеркальная.
Дверная коробка
Анодированный алюминиевый профиль, заполненный жестким утеплителем с закладными элементами для крепления фурнитуры. Низкотемпературные двери комплектуются нагревательным кабелем. Для кабеля в дверной коробке предусмотрен канал, который закрывается алюминиевой крышкой. Конструкция дверной коробки обеспечивает легкую и быструю замену кабеля путем снятия алюминиевой крышки, что не требует остановки работы камеры. Специальный уплотнитель с фольгированным защитным покрытием на внутренней стороне дверной коробки обеспечивает плотное прилегание к стене.
Фурнитура
Высококачественная специальная фурнитура (Италия). Встроенный замок с набором ключей. Замок оборудован системой аварийного выхода. Внешняя и внутренняя силовая ручка-рычаг. Колесные блоки с возможностью вертикальной и горизонтальной регулировки.
Пороги
- П-образный 20х102х20 со съемной крышкой 82 мм, утопленный в уровень с полом, канал для нагревательного кабеля, нержавеющая сталь 2 мм.
- Г-образный 50х50, нержавеющая сталь 5 мм, канал для нагревательного кабеля.
- Накладной, высота 110 мм, анодированный алюминиевый профиль.









