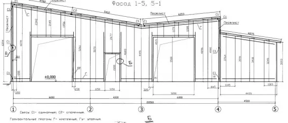
Компания “Пантек” по желанию клиентов производит технико-экономический расчет своей продукции. Он представляет собой разработку плана-схемы расположения панелей, нащельников, дверей, теплоизоляционных плит. Также разрабатываются схемы фасадов, кровли зданий и планировка.
После совместной проработки плана здания и его фасадов, кровли, составляется детальная спецификация. На основании Протокола теплотехнических испытаний готовится рекомендация о применении панелей определенных толщин в зависимости от назначения и температурной зоны эксплуатации здания.
Согласно данной спецификации производится комплект панелей, плит, нащельников и др. Поставляется на строительную площадку и в короткий срок возводится здание.
